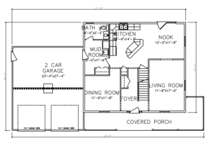
2 StoryPreston #676
Basics
- Category: 2 Story
- Bedrooms: 3
- Bathrooms: 2
- Half baths: 1
- Area: 2040 sq ft
Description
-
Description:
FIRST FLOOR= 1020 sqf.
SECOND FLOOR= 1020 sqf.
VOLUME SQUARE FEET = 35 sqf.
GARAGE SQUARE FOOTAGE = 665 sqf.
COVERED PORCH SQUARE FOOTAGE = 270 sqf.
TOTAL SQUARE FOOTAGE= 2040 sqf.
Note: Total Square Footage is calculated using the exterior dimensions of conditioned space on each living level.


