2 StoryOxford #402
Basics
- Category: 2 Story
- Bedrooms: 3
- Bathrooms: 2
- Half baths: 1
- Area: 2597 sq ft
Description
-
Description:
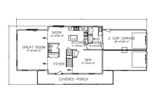
FIRST FLOOR= 1328 sqf.
SECOND FLOOR= 1269 sqf.
TOTAL SQUARE FOOTAGE= 2597 sqf.
VOLUME SQUARE FEET = 130 sqf.
NET SQUARE FOOTAGE = 2467 sqf.
COVERED PORCH SQUARE FOOTAGE =288 sqf.
GARAGE SQUARE FOOTAGE = 608 sqf.
Note: Square footage is calculated using the exterior dimensions of conditioned space on each living level.


