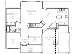
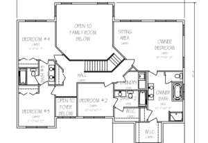
Description
-
Description:
FIRST FLOOR= 1373 sqf.
SECOND FLOOR= 1753 sqf.
TOTAL SQUARE FOOTAGE= 3126 sqf.
VOLUME SQUARE FEET = 363 sqf.
NET SQUARE FOOTAGE = 2763 sqf.
GARAGE SQUARE FOOTAGE = 465 sqf.
COVER PORCH SQUARE FOOTAGE = 106 sqf.


