Basics
Description
-
Description:
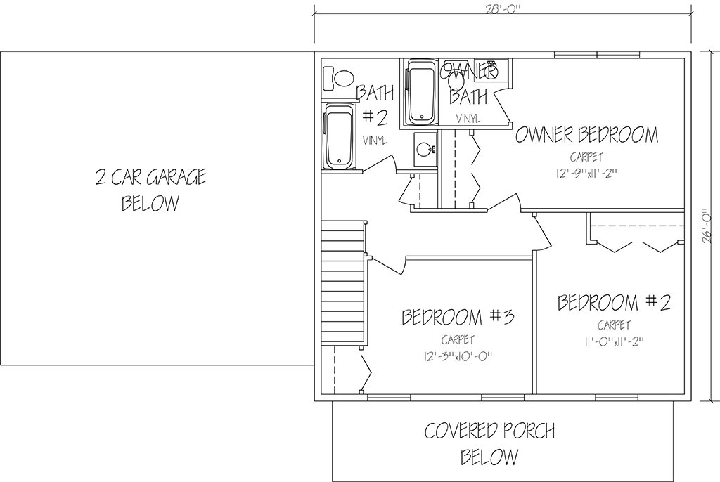
FIRST FLOOR= 728 sqf.
SECOND FLOOR= 728 sqf.
TOTAL SQUARE FOOTAGE= 1456 sqf.
VOLUME SQUARE FEET = 29 sqf.
NET SQUARE FOOTAGE = 1427 sqf.
COVERED PORCH SQUARE FOOTAGE = 152 sqf.
GARAGE SQUARE FOOTAGE = 545 sqf.
Note: Total Square Footage is calculated using the exterior dimensions of conditioned space on each living level.




