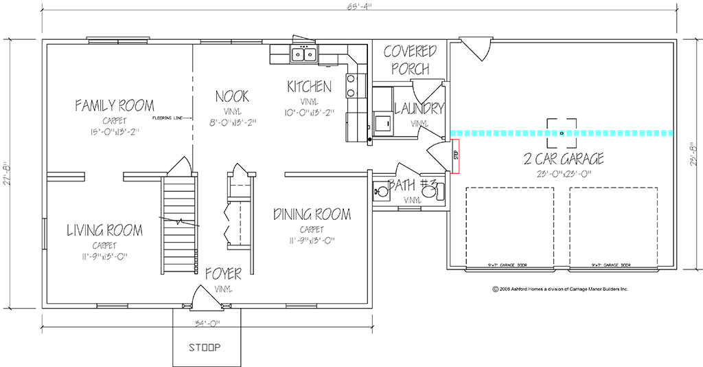
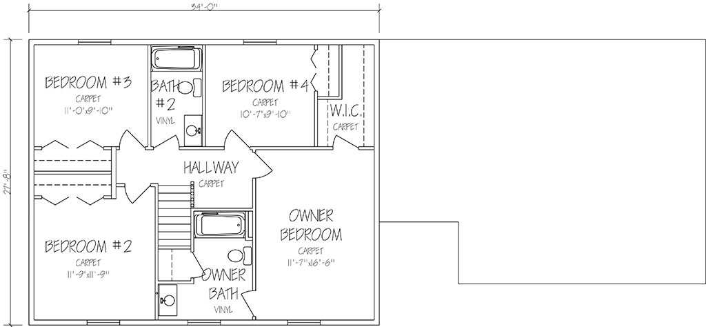
2 StoryMadison A
Basics
- Category: 2 Story
- Bedrooms: 4
- Bathrooms: 2
- Half baths: 1
- Area: 1989 sq ft
Description
-
Description:
GLENMOIRA
FIRST FLOOR= 1048 sqf.
SECOND FLOOR= 941 sqf.
VOLUME SQUARE FEET = 30 sqf.
GARAGE SQUARE FOOTAGE = 556 sqf.
TOTAL SQUARE FOOTAGE= 1989 sqf.
Note: Total Square Footage is calculated using the exterior dimensions of conditioned space on each living level.




