Madison A

2 StoryMadison A

Madison A

4 beds
2 baths
1989 sq ft

Basics

  • Category:
  • Bedrooms: 4
  • Bathrooms: 2
  • Half baths: 1
  • Area: 1989 sq ft

Description

  • Description:

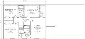
    GLENMOIRA
    FIRST FLOOR= 1048 sqf.
    SECOND FLOOR= 941 sqf.
    VOLUME SQUARE FEET = 30 sqf.
    GARAGE SQUARE FOOTAGE = 556 sqf.
    TOTAL SQUARE FOOTAGE= 1989 sqf.
    Note: Total Square Footage is calculated using the exterior dimensions of conditioned space on each living level.

Ask an Agent About This Home

Phone
By clicking the «REQUEST INFO» button you agree to the Terms of Use and Privacy Policy

Reset password

Enter your email address and we will send you a link to change your password.

Get started with your account

to save your favourite homes and more

Sign up with email

Get started with your account

to save your favourite homes and more

By clicking the «SIGN UP» button you agree to the Terms of Use and Privacy Policy

Create an agent account

Manage your listings, profile and more

Phone

Buyers will use it to contact you.

By clicking the «SIGN UP» button you agree to the Terms of Use and Privacy Policy

Create an agent account

Manage your listings, profile and more

Sign up with email
Scroll to Top