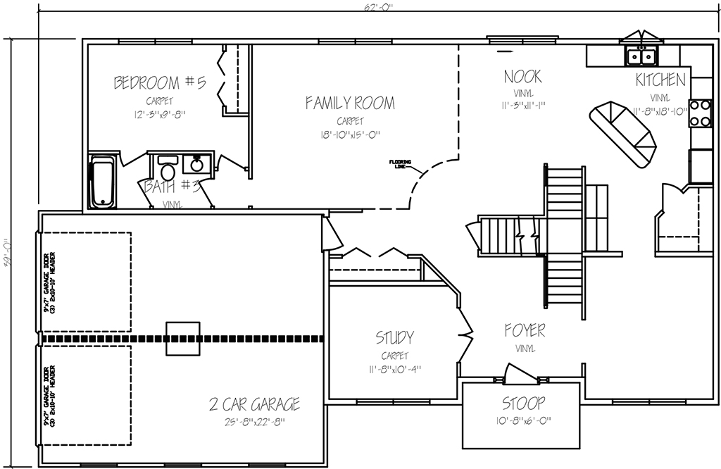
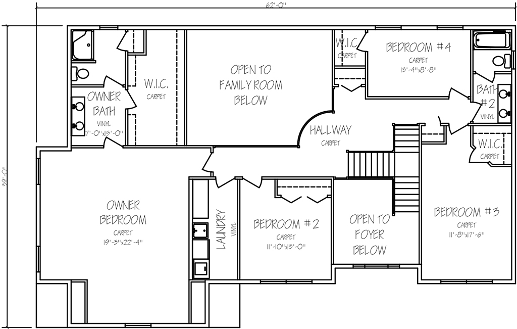
Description
-
Description:
FIRST FLOOR= 1080 sqf.
SECOND FLOOR= 1080 sqf.
TOTAL SQUARE FOOTAGE= 2160 sqf.
VOLUME SQUARE FEET = 32 sqf.
NET SQUARE FOOTAGE = 2128 sqf.
GARAGE SQUARE FOOTAGE = 528 sqf.
Note: Square footage is calculated using the exterior dimensions of conditioned space on each living level





