Basics
Description
-
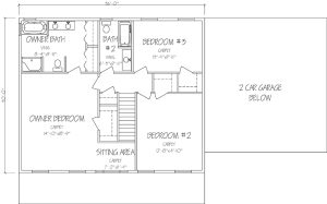
Description:
FIRST FLOOR= 1080 sqf.
SECOND FLOOR= 1080 sqf.
VOLUME SQUARE FEET = 30 sqf.
GARAGE SQUARE FOOTAGE = 616 sqf.
COVERED PORCH SQUARE FOOTAGE = 216 sqf.
TOTAL SQUARE FOOTAGE= 2160 sqf.
Note: Total Square Footage is calculated using the exterior dimensions of conditioned space on each living level.




