Basics
Description
-
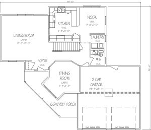
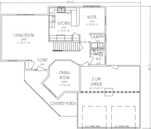
Description:
FIRST FLOOR= 996 sqf.
SECOND FLOOR= 961 sqf.
VOLUME SQUARE FEET = 30 sqf.
GARAGE SQUARE FOOTAGE = 559 sqf.
COVERED PORCH SQUARE FOOTAGE = 153 sqf.
TOTAL SQUARE FOOTAGE= 1958 sqf.
Note: Total Square Footage is calculated using the exterior dimensions of conditioned space on each living level






