2 StoryWellsboro
Basics
- Category: 2 Story
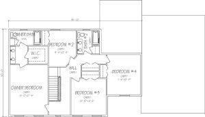
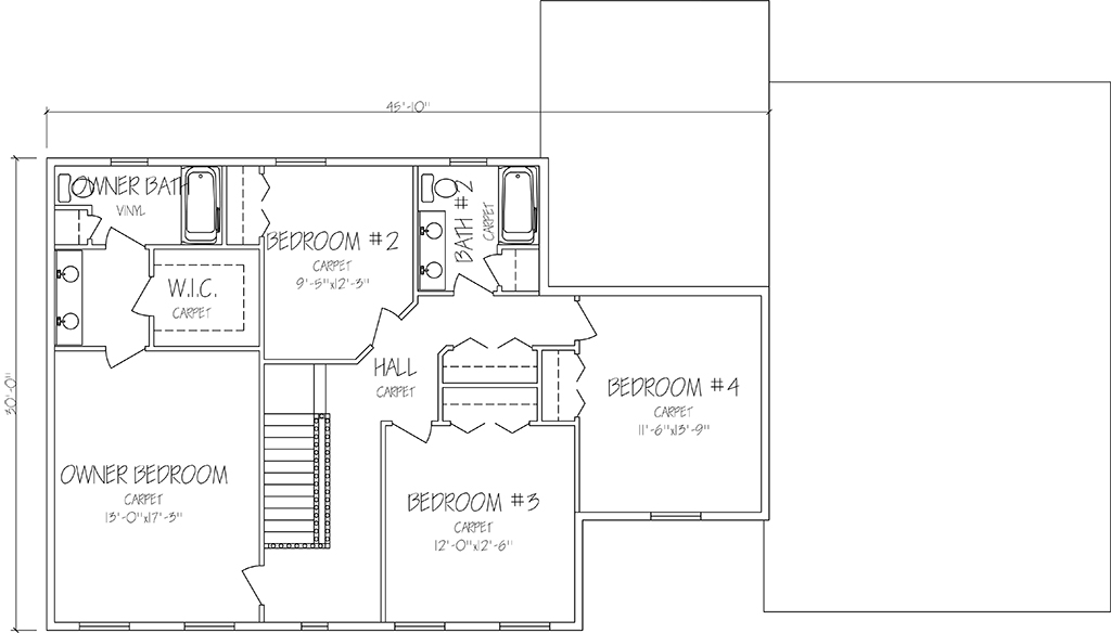
- Bedrooms: 4
- Bathrooms: 2
- Half baths: 1
- Area: 2625 sq ft
Description
-
Description:
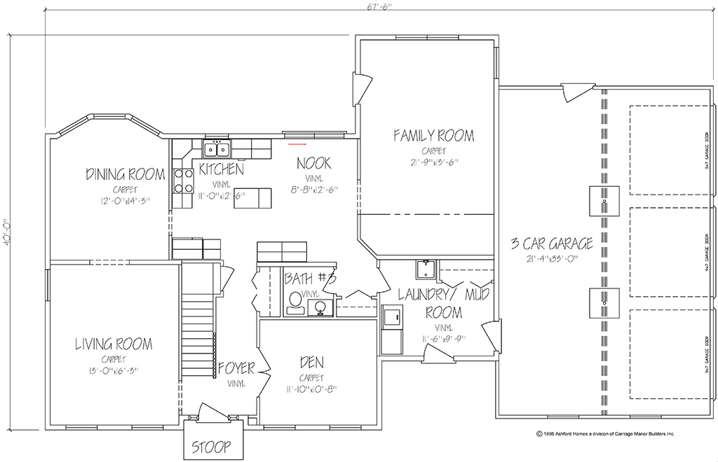
FIRST FLOOR= 1447 sqf.
SECOND FLOOR= 1178 sqf.
VOLUME SQUARE FEET = 45 sqf.
GARAGE SQUARE FOOTAGE = 741 sqf.
TOTAL SQUARE FOOTAGE= 2625 sqf.
Note: Total Square Footage is calculated using the exterior dimensions of conditioned space on each living level.




