2 StoryCanterbury
Basics
- Category: 2 Story
- Bedrooms: 4
- Bathrooms: 4
- Half baths: 1
- Area: 4324 sq ft
Description
-
Description:
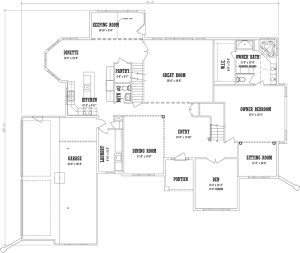
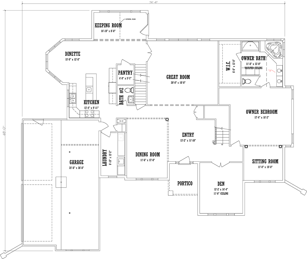
FIRST FLOOR- 2644 SQF.
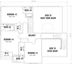
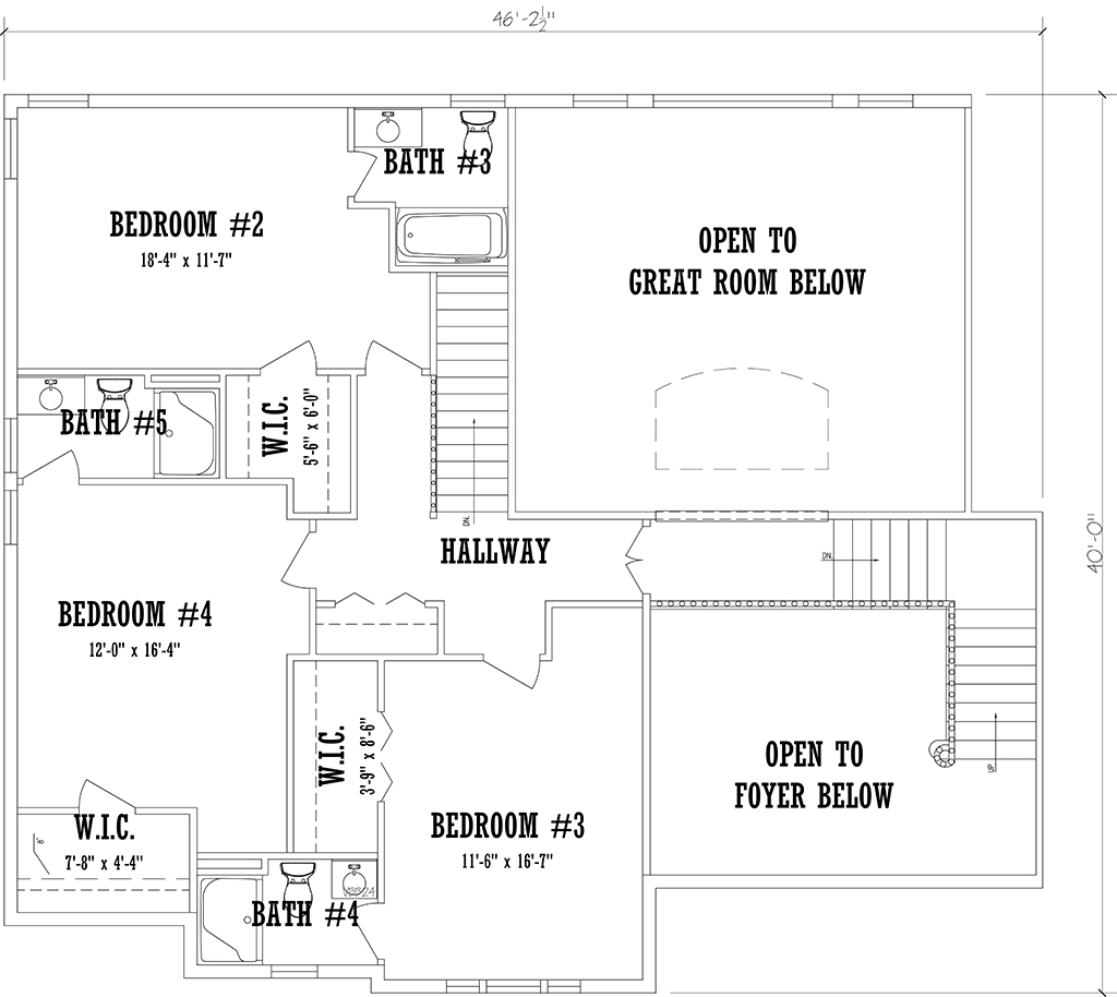
SECOND FLOOR- 1680 SQF.
TOTAL SQUARE FOOTAGE= 4324 SQF.
VOLUME SQUARE FEET =634 SQF.
NET SQUARE FOOTAGE = 3690 SQF.
GARAGE SQUARE FOOTAGE = 814 SQF.
Note: Square footage is calculated using the exterior dimensions of conditioned space on each living level.






