2 StoryEdinboro
Basics
- Category: 2 Story
- Bedrooms: 4
- Bathrooms: 2
- Half baths: 1
- Floors: 2
- Area: 2688 sq ft
Description
-
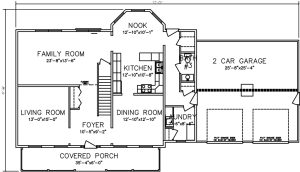
Description:
FIRST FLOOR= 1426 sqf.
SECOND FLOOR= 1262 sqf.
TOTAL SQUARE FOOTAGE= 2688 sqf.
VOLUME SQUARE FEET = 23 sqf.
NET SQUARE FOOTAGE = 2665 sqf.
COVERED PORCH SQUARE FOOTAGE = 212 sqf.
GARAGE SQUARE FOOTAGE = 676 sqf.
Note: Square footage is calculated using the exterior dimensions of conditioned space on each living level.





